صُمم هذا الحفار كأداة تثبيت أيضاً (أدنى ارتفاع للمقطع العرضي: 2.8 م) خصيصاً لإنجاز عمليات التثبيت بكفاءة عالية داخل الأنفاق الضيقة والمناجم تحت الأرض، حيث يسمح لآلية التغذية الخاصة به إجراء التثبيت بثقة في أنفاق صغيرة تصل أبعادها إلى 2.8 م × 2.8 م.
كما أنه مزود بنظام حفر هيدروليكي كهربائي متطور وجهاز مضاد للانسداد، ويضمن هذا الجهاز الهيدروليكي سرعة حفر فائقة، وكفاءة عالية، وأداء ثابت ومستقر. تصميمه المدمج وسهل المناورة يتيح تشغيلاً سلساً في الأماكن الضيقة، مما يحسّن بيئة العمل ويرتقي بجودة البناء الشاملة.
| جامبو الحفر الهيدروليكي | المقطع العرضي المناسب (الأبعاد الملائمة) | 2800×2800-3500×3500mm |
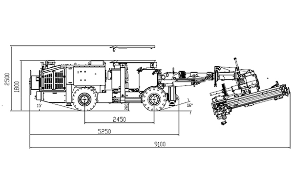
| الطول | 9100mm | |
| العرض | 1500mm | |
| الارتفاع (عند خفض السقف) | 1800mm | |
| الارتفاع (عند ارتفاع السقف) | 2500mm | |
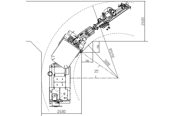
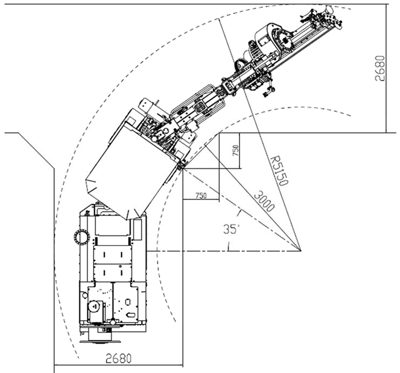
| GYTM412LD | أدنى نصف قطر للدوران | الداخلي 3000 مم/ الخارجي 5150 مم |
| قدرة الصعود على المنحدر | 14° | |
| سرعة الحركة | 3.8 كم/ ساعة | |
| الوزن الكلي | 12000kg | |
| الخلوص الأرضي | 280mm | |
| مثقاب هيدروليكي | الطراز | RC1200 |
| قدرة الطرق الصادمة | 14kW | |
| معدل الطرق/ تردد الطرق | 100Hz | |
| أقصى ضغط طرق | 180 بار | |
| نظام الدوران | الدوران المستقل | |
| ذراع المثقاب/ الحفر | R32 | |
| قطر الثقب | 32-45mm | |
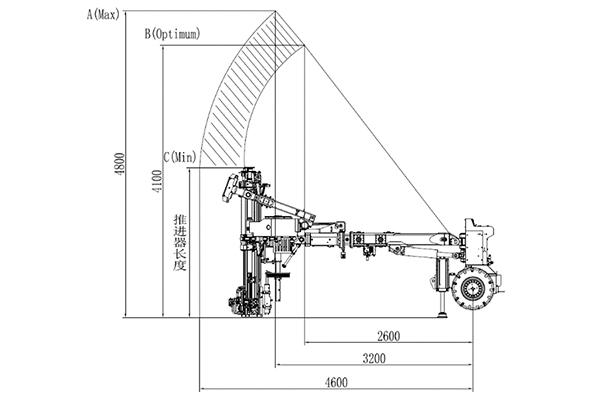
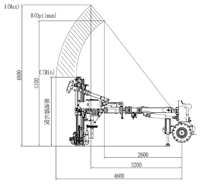
| نظام التغذية | طول حركة التغذية | 2780mm |
| طول برغي التثبيت | 1800mm | |
| الضغط التشغيلي | ≤10MPa | |
| قوة التغذية | 10 كيلو نيوتن | |
| زاوية إمالة التغذية | +80°-25° | |
| زاوية دوران نظام التغذية | ±180° | |
| طول حركة التغذية التعويضية | 480mm | |
| العارضة (ذراع الحفر) | زاوية الميل | +50° / -30° |
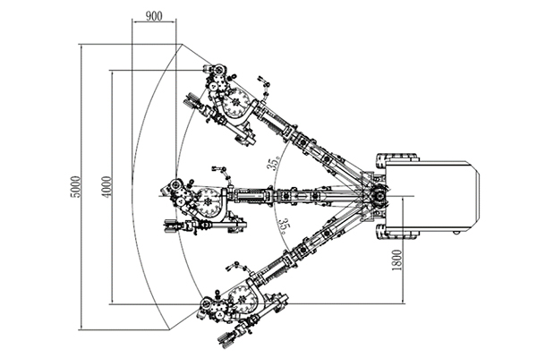
| مدى امتداد الذراع | 900mm | |
| زاوية التأرجح | ±35° | |
| الهيكل | المحرك | محرك ديزل Cummins مطابق لمعيار Stage IV |
| القدرة الاسمية للمخرج (عند 2400 دورة/دقيقة) | 54kW | |
| عزم الدوران | 320 نيوتن متر | |
| تأرجح المحور الخلفي | 7° | |
| زاوية التوجيه | ±35° | |
| النظام الهيدروليكي | الطرق / الإزاحة | 100cc/32cc |
| السعة القصوى لخزان الزيت | 100 لتر | |
| دقة الترشيح | 10 ميكرون | |
| حساس مستوى الزيت: متوفر | ||
| مزود بمبرد مياه | ||
تُعتبر Huatai الشركة الصينية الرائدة والمتخصصة في تصميم وإنتاج معدات حفر الصخور والحفارات الهيدروليكية لأعمال التعدين وحفر الأنفاق والآبار وغيرها.، حيث التزمت الشركة منذ تأسيسها في العام 2000 بتصنيع أحدث الآلات وتوفير أعلى مستويات خدمة العملاء لعدد من الشركات العاملة في قطاعات التعدين والمعادن وهندسة الأساسات.
كما تجدر الإشارة إلى أن الشركة حققت نجاحاً باهراً ومستمرًا في سد العديد من الثغرات في السوق المحلية خلال 20 عامًا من الابتكار والتطوير المستمر في قطاع أعمال التعدين تحت الأرض وحفر الصخور والأنفاق والآبار. وحالياً، يوجد في مصنع الشركة خطوط إنتاج متطورة لإنتاج أكثر من 30 نوعًا من آلات الحفر التي تنقسم إلى ثلاث فئات، مثل معدات التعدين تحت الأرض ومعدات تعدين الفحم ومعدات الحفر العمودية لحفر الآبار وغيرها. إلى جانب ذلك، ونتيجة لسنوات من النمو والتحسين المستمر، فقد حققت الشركة إنجازًا محترمًا في صناعة الحفارات وضاعفت أنظمة السلامة والكفاءة والفعالية من حيث التكلفة لهندسة المناجم تحت الأرض وعمليات إنشاء الأنفاق.
تُعتبر هذه الحفارة من معدات الحفر المتخصصة وعالية الأداء والتي تم تطويرها لتلبية متطلبات الحفر العمودي العميق للصخور الصلبة، حيث تعمل بمحرك قوي بقدرة 132 كيلو وات ومزودة بثلاث آلات حفر هيدروليكية للخدمة الشاقة، مما يمكنها من التعامل مع أقطار الحفر من 4 إلى 6 أمتار. كما أن هيكلها خفيف الوزن (يزن أقل من 7 أطنان) مما يلغي الحاجة إلى معدات رفع كبيرة الحجم، وبالتالي توفر التكلفة ويلبي احتياجات الحفر الخاصة.
اقرأ المزيد +
يتميز حفار العمود الرأسي الهيدروليكي YSJZ بأنه نوع من آلات حفر الصخور المصممة خصيصًا لتشييد العمود الرأسي في مناجم خام الحديد والمعادن غير الحديدية، كما يعتبر حفار العمود الرأسي بديلاً رائعًا لاستخدامه في مشاريع التعدين والتشييد تحت الأرض حيث لا يمكن اعتماد طرق حفر أخرى بسبب حدودها الفنية أو الاقتصادية. وإلى جانب ذلك، يتم تشغيل عمليات معدات الحفر الهيدروليكية بواسطة محركين بقدرة 90 كيلو وات، بما في ذلك الدوران والحفر والتغذية.
اقرأ المزيد +
حفار عمود رأسي هوائي (عمود حفر بالهواء المضغوط)، سلسلة SJZ هو من المعدات الخاصة لحفر ثقوب للانفجارات في المحاجر أو مناجم التعدين لاستخراج كمية أكبر من المعادن، حيث إنه يناسب نطاقًا واسعًا من أقطار العمود وميزات التشغيل المرن وتحديد المواقع بدقة وأمان موثوق. كما يتم تشغيله عن طريق الهواء المضغوط وينتقل عن طريق النظام الهيدروليكي وجميع حركات تثبيت المثقاب مدفوعة بالآلة، كما يتم تحديث الكفاءة المجهزة لحفر الثقوب بشكل طبيعي وبالتالي يتم توفير وقت العمل الإضافي بشكل كبير.
اقرأ المزيد +
مصمم خصيصاً لتكوينات الصخور متوسطة الصلابة، يقدم مثقاب RC600 الهيدروليكي أداء حفر قوي ودقيق عبر مجموعة واسعة من التطبيقات الصعبة. يتميز بتصميم متين وقدرات متعددة تجعله الخيار الأمثل لأعمال الحفر الداعمة في التعدين تحت الأرض، وتركيب مسامير التثبيت، وبناء الطرق السريعة، وهندسة الجسور، والمشاريع العمرانية المعقدة.
اقرأ المزيد +